C0081 [2011提高组Day1-A]铺地毯

内存限制:128 MB 时间限制:1000 ms

题目描述

为了准备一个独特的颁奖典礼,组织者在会场的一片矩形区域(可看做是平面直角坐标系的第一象限)铺上一些矩形地毯。一共有 $n$ 张地毯,编号从 $1$ 到 $n$。现在将这些地毯按照编号从小到大的顺序平行于坐标轴先后铺设,后铺的地毯覆盖在前面已经铺好的地毯之上。地毯铺设完成后,组织者想知道覆盖地面某个点的最上面的那张地毯的编号。注意:在矩形地毯边界和四个顶点上的点也算被地毯覆盖。

输入格式

输入共 $n+2$ 行。
第一行,一个整数 $n$,表示总共有 $n$ 张地毯。
接下来的 $n$ 行中,第 $i+1$ 行表示编号i的地毯的信息,包含四个正整数 $a$,$b$,$g$,$k$,每两个整数之间用一个空格隔开,分别表示铺设地毯的左下角的坐标 $(a,b)$ 以及地毯在 $x$ 轴和 $y$ 轴方向的长度。
第 $n+2$ 行包含两个正整数 $x$ 和 $y$,表示所求的地面的点的坐标 $(x,y)$。

输出

输出共 $1$ 行,一个整数,表示所求的地毯的编号;若此处没有被地毯覆盖则输出 $-1$。

样例

样例输入 1

3 1 0 2 3 0 2 3 3 2 1 3 3 2 2

样例输出 1

3

样例输入 2

3 1 0 2 3 0 2 3 3 2 1 3 3 4 5

样例输出 2

-1

提示

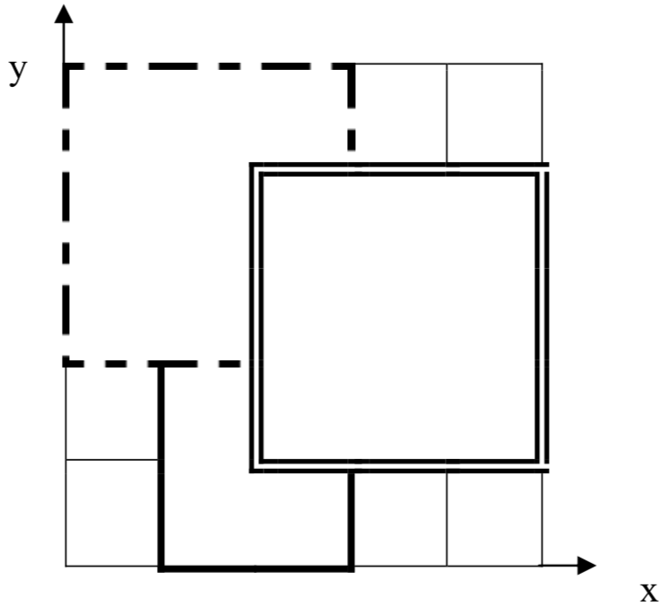
【样例 1 说明】

如下图,1 号地毯用实线表示,2 号地毯用虚线表示,3 号用双实线表示,覆盖点 $(2,2)$ 的最上面一张地毯是3号地毯。

屏幕快照 2019-05-24 下午2.01.57.png

【样例 2 说明】

如上图,1 号地毯用实线表示,2 号地毯用虚线表示,3 号用双实线表示,点 $(4, 5)$ 没有被地毯覆盖,所以输出 $-1$。

【数据范围】

对于30%的数据,有 $n≤2$;
对于50%的数据,$0≤a, b, g, k≤100$;
对于100%的数据,有 $0≤n≤10,000,0≤a, b, g, k≤100,000$。